Basic to SAP22


ขั้นตอนการใช้งานโปรแกรม

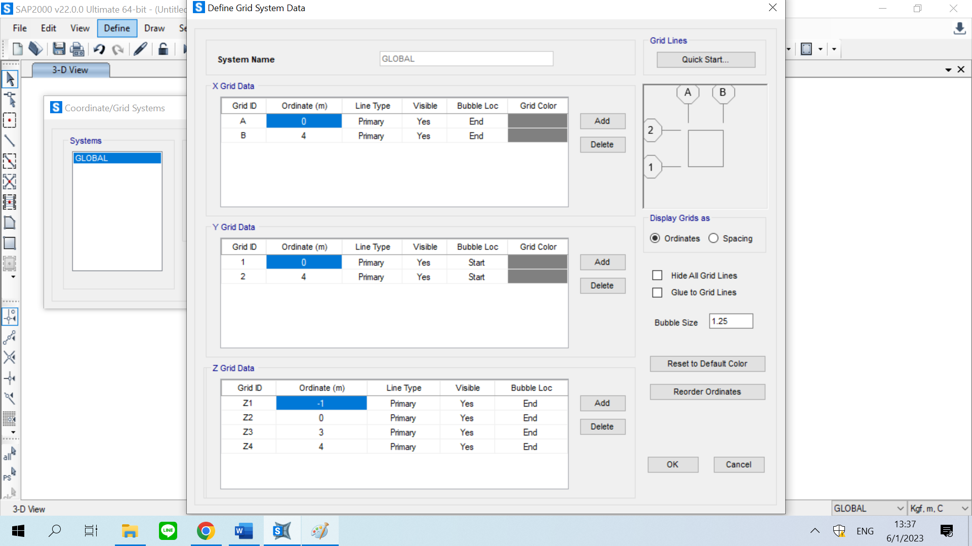
1. สร้างระบบกริดไลน์ตามแบบแปลน
2. เขียนโครงสร้างอาคาร เช่น คาน เสา พื้น โครงหลังคา และกำหนดตำแหน่งฐานราก
3. สร้างคุณสมบัติวัสดุ เช่น คอนกรีต เหล็กเส้น เหล็กรูปพรรณ
4. สร้างหน้าตัดโครงสร้าง คาน เสา พื้น เหล็กโครงหลังคา
5. กำหนดหน้าตัดโครงสร้างให้กับทุกชิ้นส่วนโครงสร้าง
6. กำหนดคุณสมบัติเพิ่มเติมของชิ้นส่วนโครสร้าง เช่น Joint Restraints, Frame Release
7. สร้างรูปแบบน้ำหนักบรรทุก กรณีน้ำหนัก และน้ำหนักผสม
8. กำหนดน้ำหนักบรรทุกให้กับโครงสร้าง เช่น น้ำหนักบรรทุกจรพื้น น้ำหนักผนัง น้ำหนักหลังคา
9. สั่งวิเคราะห์โครงสร้าง และออกแบบโครงสร้างคอนกรีตและเหล็ก
10. ตรวจสอบผลการออกแบบ
11. สร้างรายงานการออกแบบ